ЖК «Дружный»

г. Краснодар, ул. Кирилла Россинского

Фото Планировки Цены Инфраструктура О комплексе Особенности Оплата На карте Отзывы
Срок cдачи
2021
Класс жилья
Комфорт+
Застройщик

Класс жилья
Комфорт
Этажность
16-19
Технология
Кирпично-монолитный
Отделка
Предчистовая
Высота потолков, м
2.7
машиномест
213
ФЗ 214
Да
Срок сдачи
4 кв. 2021

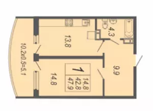
Планировки и цены ЖК «Дружный»

Способы оплаты

Первоначальный взнос
 - 
руб.
Ежемесячный платеж
 - 
руб.
Наличие недвижимости

Описание комплекса

«Дружный 2» – это название нового жилого комплекса с квартирами класса «комфорт» и благоустроенной парковой территорией. Благодаря стильным фасадам, дома выглядят современно и красиво. Застройщиком предлагаются однокомнатные, двухкомнатные, а также трехкомнатные квартиры с широким выбором вариантов планировки на любой вкус. ЖК «Дружный 2» – это современный дом, в котором имеется всё для комфортной жизни. Здесь богатая инфраструктура. На первых этажах зданий работают магазины, аптеки, кафе, мастерские, салоны красоты. Территория ЖК «Дружный 2» обустроена так, чтобы каждый житель смог отдохнуть на свежем воздухе, найдя занятие по своему вкусу. Это перспективный зелёный район, который удалён от шумных магистралей, но при этом характеризуется развитой инфраструктурой. В непосредственной близости от жилого комплекса имеется всё, что нужно горожанам для комфортной жизни: детские сады, школы, развивающие центры, поликлиника, торговые центры, аптеки, салоны красоты. ЖК «Дружный 2» состоит из домов комфорт-класса с широким выбором квартир: от 1-комнатных до 3-комнатных. Будущим жильцам предлагается не только удобное жильё, но и большая придомовая территория, прогулочные зоны с озеленением, собственная инфраструктура. Поющий фонтан удивит всех жителей комплекса. Для маленьких жителей построены современные игровые площадки из безопасных материалов.

Карта проезда в ЖК «Дружный»

ЖК «Дружный» расположен по адресу: г. Краснодар, ул. Кирилла Россинского
Проверено на актуальность: 28.11.2025

Объекты застройщика «Победа»

Рекомендуем посмотреть в Краснодаре